
【精裝改造】70㎡Loft裝出排屋即視感?這波新中式操作讓人拍案叫絕!
本期要為大家分享一套70方新中式風格的精裝LOFT公寓設計。
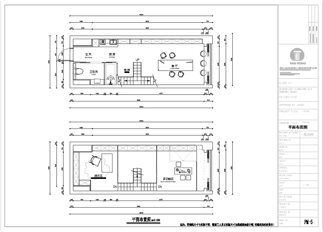
這所小公寓,主要是用于主人的觀景度假、私人辦公與沙龍聚會。設計師在一樓布局客廳、廚房及衛浴,二樓則打造為多功能休閑區與儲藏區,空間雖小而功能完備。 ▲平面方案 新中式風格在居室內得到凝練、簡雅的表達——溫潤的木色奠定空間基調,全屋定制柜以骨骼線勾勒立體輪廓,墻面則佐以米色硬包材質,以品茗需求為核心所構筑的文雅布局中,處處透著閑適與松弛感。 這所小天地,也正是現代都市人對“雅致生活”的理想注解:既有傳統東方氣韻的滋養,又不失現代生活的實用與舒適。 自然與禪韻,本就是一體的兩面。居室以現代手法詮釋東方美學,讓居者在繁華都市中,亦能感知到山林的清幽與禪意的深遠~ 公寓進門是一條逾3米長的過道,左右兩側我們規劃了玄關、衛浴與廚房,通過地面瓷磚與長虹玻璃移門區隔里外不同的場域屬性,家屋變得整潔有序。 循著光影的足跡向內,敞開上下兩層雅正的品茗空間。樓梯扶手使用金屬線條勾勒,為空間添上精致的感受。拾級而上時,明亮的光灑落,宛如行走在自然與人文交織的詩意里。 挑空區的墻面,利用國風山水畫、端景臺以及花器和擺件,構塑了一幅古韻悠長的視覺圖景,讓居者在抬眸之間,便能感知一份“不出城郭而獲林泉之趣”的悠然心境。 公寓外的景色極佳,拉開窗簾,遠方的青山即入眼眸。晴時,山巒如黛,在晨霧中若隱若現;雨時,朦朧依稀,似與天際融為一體。窗扇儼然作了天然的畫框,讓四季變幻的山色,成為這處空間最生動的背景。 新中式風格的精妙之處,在于將自然之靈與禪意之靜的巧妙融合。居室以光為引、以木為媒,讓材質本身的沉著質感化為空間語言,搭起靜謐、幽深的格局。 茶桌的一側,我們為主人辟出了茶具的存放、展陳區。在行云流水的煮茶動線中,器物與人的互動,成就了一方最具溫度的空間敘事。 二樓休閑多功能區域,同樣散發著濃郁的古典魅力。低矮的案臺搭配蒲團,可供主人品茶冥想、翻卷凝思。光影、材質與色彩共同作筆,打造優雅、從容的人文景觀。 木柜中加入玻璃材質,在空間中融入更多清透感,也使得整體調性變得更加平衡。素雅的陳設、溫潤的器物,在這里,時間仿佛被拉長,所有喧囂被過濾,只留下寧靜與自在。 P.I. 項目信息 項目名稱:理想城 設計風格:新中式 項目類型:LOFT 項目地點:中國·杭州 項目面積:70㎡ 套餐類型:精裝房改造 項目服務:設計·施工·硬裝·軟裝 全案設計 設計單位:浙江南鴻裝飾 施工單位:浙江南鴻裝飾















上一篇:大白墻逆襲指南,告別廉價感!
免費
免費申請戶型規劃
專屬設計師免費1對1全程服務
已經有3783人申請
24小時免費咨詢電話
400-8800-618
你家預算
108080元