
御湖半島102㎡ | 輕法式混搭中古,收納也能做這么好看的裝飾?!

本期要為大家分享一套102方輕法式中古風的案例。
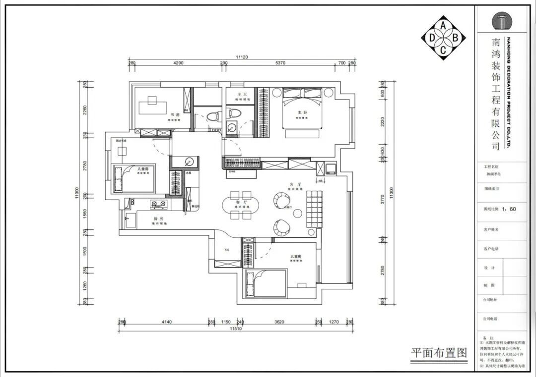
空間使用奶油白打底,搭配黑色和木系的元素,以及經典弧形線條與洞洞元素,家變得柔和又靈動。遵循“減法”準則的硬裝,于細節中雕琢,以中古為韻,悄然釋放復古的魅力。 當居室功能被順利轉譯為視覺語言,家便不再只是居所,而成為能夠與時間對話的敘事場。 設計師用輕法式中古的語境,將儲物收納與造型裝飾巧妙融合,“藏與露”的平衡之術,既是對空間的高效利用,又是一種對生活儀式感的溫柔喚醒。 ▲平面方案 玄關鋪花磚并作下沉式布局,為入戶第一步注入了生動的情調。向內延伸的公區域則通鋪人字拼地板,與玄關花磚的交界處,設計師用一道弧線完成過渡,借以弱化材質的分割感,實現溫柔的轉折。 客廳采用的是相比傳統布局更加自由的去電視設計,背景墻做收納柜,并添入了趣味的洞洞元素。簡潔的底色輕盈通透,頂面一盞吊扇燈作點睛之筆,為空間注入復古韻味與懷舊氣息。 包豪斯風休閑椅搭配邊幾,靈活可變的組合,隨時應主人心意而動,詮釋著愜意生活的內涵。 一組低飽和度的豆腐塊沙發,與同色系翡翠綠的豆芽落地燈組合,輕巧勾勒一方溫暖而幸福的休閑角落。 餐區通過黑色調法式復古風餐桌與中古的餐椅以及一盞蠶絲吊燈搭配,整體沉靜中又有迷人的優雅氣質,讓三餐都成為值得回味的生活圖景。 素白的墻面用弧線勾勒出溫潤輪廓,復古風餐邊柜上擺放一瓶綠意,為空間播下詩性的種子。 餐廳的儲物規劃同樣輕盈利落,水吧臺結合封閉式收納柜與開放擱板,常用的杯盞、食材等可隨手取放,雜物則統一收進柜子,嚴謹的收納邏輯,讓生活井井有條。 廚房將視覺重心放在地柜,賦予空間沉穩個性。烹炒區一側墻面開壁龕,瓶罐調料觸手可及。整體L型結構在水槽區抬高,高效節省空間的同時,還照顧到了日常使用的舒適度,讓烹飪時光變得輕松自在。 素樸留白的臥室,能讓心瞬間平靜下來。空間融合了美式的復古質感與中式的禪意韻味,碰撞出獨特的格調。床頭一盞玉石小吊燈,澄澈溫潤;床尾配一組斗柜,悠閑的氛圍伴隨古拙肌理,在室內徐徐蔓延。 書房的這處移門兼柜門設計,在開合之間,生動演繹了”收納即是藝術裝置“的哲學。既解決了收納難題,也將日常使用升華為一種生活儀式。 衛浴干區選用了金屬邊框的圓弧型鏡子,搭配同系列吊柜,體量輕盈又有高顏值,同步呼應公區域整體優雅而從容的氛圍。 衛生間使用玻璃隔斷隔開淋浴區,阻隔水汽的同時釋放出更多活動空間。通透感材質維持視覺上的連貫性,也避免了小面積衛生間容易產生的壓抑與局促。 P.I. 項目信息 項目名稱:御湖半島 設計風格:輕法式中古 項目類型:四室兩廳 項目地點:中國·寧波 項目面積:102㎡ 項目服務:設計·施工·硬裝·軟裝 全案設計 設計單位:浙江南鴻裝飾 施工單位:浙江南鴻裝飾


















免費
免費申請戶型規劃
專屬設計師免費1對1全程服務
已經有3783人申請
24小時免費咨詢電話
400-8800-618
你家預算
108080元