
簡素,高級,且溫柔!116㎡現代風私宅的“生活韻律學”
本案空間輪廓簡素,內在卻是安定而豐盈。光線沿溫潤的木面自然流淌,在每一處松弛的角落,醞釀出富有呼吸感的詩意。
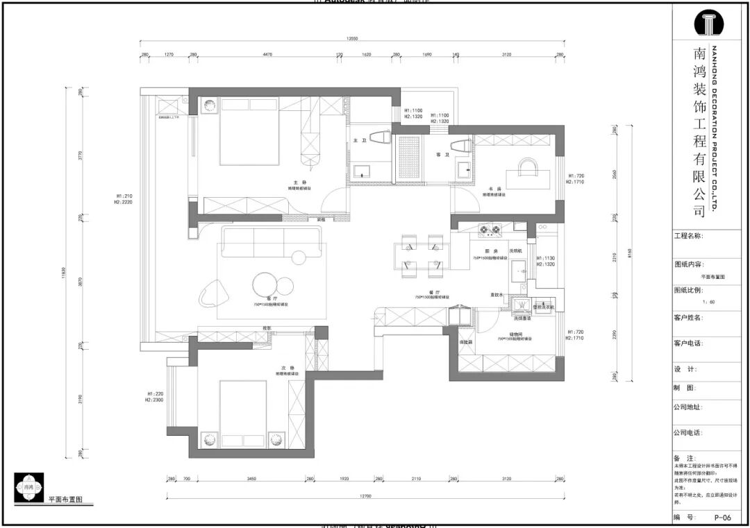
圍繞一家三口的生活日常,設計師打開公共區域的界限,為孩子留出足夠寬敞的活動區域。功能布局上,無論是客廳、餐廳、臥室,還是兒童房,均規劃了系統且充足的收納空間。
于是,美的韻律流動于表,生活的痕跡安然隱藏于內,真正實現了“簡于形,而豐于生活”。




Hallway
玄關
推門而入,世界被輕輕隔絕在外。一處設計得當的玄關,無需繁復,重在純粹與從容。正對的玄關柜,以極簡線條梳理鞋物收納,視覺留白,賦予家所需的呼吸感。

燈光的嵌入,進一步烘托了空間溫度。亮起的光因而成為銜接實用與氛圍的媒介,將“回家”這一過程,映照得溫暖而舒適。

深淺的體塊以過道為界并向兩側延伸,利落的線條與連續的塊面,將空間的結構之美清晰強化。

頂面的弧線蜿蜒出溫和視感,柔化了空間的棱角,也如一抹舒緩的韻律,牽引著歸家的視線和心境。
Living Room
客廳

室內以互動與共享為核心,建構開敞通透的格局。空間既有著日常居家的悠閑氛圍,也容納得下親友歡聚時的熱鬧與歡騰。

客廳色彩沉靜、明朗大方,取消傳統電視機模式,改用投影幕布承接一家人日常的觀影休閑需求。在這里,功能跟隨生活而動,空間為人而設。


體塊化的奶白色無把手儲物柜,存放起所有生活的零碎。格柵線條隱形門不著痕跡,便讓整個立面化身為勻凈的背景,空間更顯一體與寧靜。


米白色皮革沙發觸感溫潤,搭配造型藝術的落地燈、邊幾,透出休閑而又時尚的氣息。墻面運用木材與巖板,于素雅中見層次,成為了生活美學的自然延展。
Dining Room
餐廳

餐桌椅相鄰吧臺擺放,這道吧臺即是餐廳與廚房間的無聲分隔,煙火氣與儀式感各得其所,又在一個大的整體性中緊密相連。

統一的木作柜嵌入冰箱和酒水玻璃柜,簡潔干凈的立面營造舒適平和的空間感受。



連貫的煙熏木色調內斂克制,不著多余的裝飾,僅以木的自然紋理鋪展靜謐詩意,伴隨光線流動,給予家無限溫和的從容。
Master Room
主臥
主臥接續凝練至簡的線條,營造適宜入睡的安恬氛圍。 床頭背景墻結合硬包與木質護墻,形塑有序的碰撞,豎向的線條延伸了空間縱深感,整體沉穩又不失張力。



床頭柜、衣柜與護墻板被巧妙地融合為一體,借由穿插及咬合的結構語言,將功能升華為了藝術。


延續至床尾,儲物柜自然過渡為展示架,穿插的柜體結構、流暢的弧面轉折,讓動態的線條與沉穩的體塊彼此對話,進一步提升空間的張力。

相鄰主衛的空間開辟出獨立的衣帽區域,增強日常起居的儀式感。玻璃門柜可展示精心收藏的包包,封閉式衣柜則將四季衣物妥帖收納,維持視覺的潔凈與有序。



燈光氛圍的塑造也是臥室設計中十分重要的一環。無論從哪個角度看去,端景的深淺、物件的輪廓,皆溫和雅致,無須濃墨重彩,便足以讓空間自訴那份細膩而溫柔的居住美學。
Children's Room
兒童房

兒臥采用瑪雅藍跟月牙白的組合,讓空間變得寧靜且富有想象力。以太空探索為主題,呼應男孩對宇宙的好奇心,也輕盈托起了他那飽含著希望與憧憬的內心世界。



圓潤的家具線條不僅安全貼心,更巧妙承載了童年那份純真與趣味。藍白的配色經典耐看,在成長的每個階段都適用,不會過時。開放式書柜嵌入墻面,讓書本成為最自然的裝飾,也創造了“隨手拿起一本”的便利。

無主燈鋪展豐富的光影層次,在每個夜晚安靜守護著孩子香甜的夢。
Bathroom
衛生間

臺盆柜懸浮而立,內嵌燈光從臺面下緣漫出,投射于墻面兩側,頂部加以燈道的呼應,形成連貫的光影敘事。冷白光色契合空間的銀灰主調,凸顯出現代衛浴的科技美感與高級質感。
—
項目信息
項目名稱:濱河沁月
設計風格:現代
項目類型:四室兩廳
項目地點:中國·寧波
項目面積:116㎡
項目服務:設計·施工·硬裝·軟裝 全案設計
設計單位:浙江南鴻裝飾
施工單位:浙江南鴻裝飾
免費
免費申請戶型規劃
專屬設計師免費1對1全程服務
已經有3783人申請
24小時免費咨詢電話
400-8800-618
你家預算
108080元